Il Centro
O Viveiro si trova a Chitima, a circa 150 km da Tete e si sviluppa su un’area - periferica rispetto alla città - di 5 ettari, situata nei pressi del Rio Sanangue per lo più in secca, eccetto che nella stagione delle piogge, dove tuttavia parte della popolazione, scavando nella sabbia, va a cercare l’acqua per sé e per abbeverare il bestiame.
La zona, come tutta l’area circostante, ha la vegetazione tipica della savana, con arbusti spinosi, alti baobab, sterpaglie, alberelli che offrono piccoli frutti selvatici, mentre non lontane si vedono le montagne di Songo che racchiudono la diga di Cahora Bassa sullo Zambesi. Dalla diga, una delle più grandi dell’Africa, che fornisce energia elettrica al Sud-Africa, e che dista in linea d’aria da Chitima solo una ventina di chilometri, non si è mai riusciti, per tragica ironia, ad allacciare un acquedotto che rifornisse la città e le zone rurali limitrofe. Di conseguenza, soprattutto nelle epoche di siccità, si perdono i raccolti, i bambini muoiono di dissenteria per aver bevuto acqua inquinata, le bestie muoiono di sete. La bellezza serena del paesaggio, nelle magiche luci africane, nella povera tranquillità dei villaggi, nella vivacità dei tanti bambini addolcisce gli immensi problemi, senza riuscire tuttavia a nasconderli.
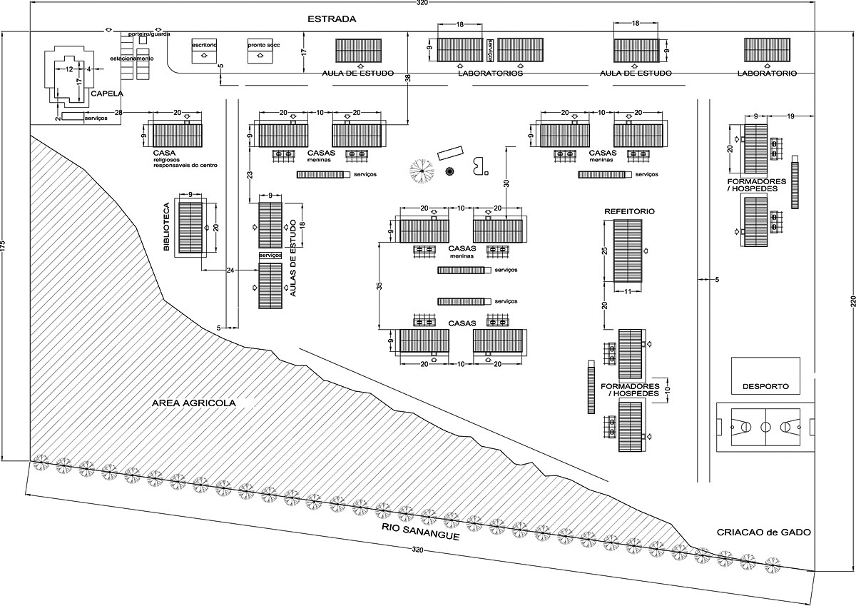
Le nostre bambine/ragazze alloggiano presso il Centro. Alla prima casa, di quattro stanze con letti a castello, tre bagni, una cucina e una grande camera da pranzo, se ne è aggiunta nel 2018 un'altra per dare alle più grandi più indipendenza e per offrire alle più piccole l’assistenza di una delle ragazze più grandi.
Dona Lucia e suo marito, il Signor Tomé, vivono in un edificio vicino dove ci sono anche le camere per gli ospiti, mentre altri edifici sorgono nell’area: un ufficio, una casa che ospita un piccolo mulino per la molitura delle granaglie, una grande aula studio, un locale per la sartoria e tre laboratori e, prima e più grande costruzione, la Chiesa, dedicata a Maria Mater Dei. Per il periodo della loro permanenza, il Centro O Viveiro, escluso il tempo delle vacanze, è la loro nuova casa.
Per quanto riguarda le infrastrutture, il centro ha 2 pozzi, di cui uno profondo, due serbatoi per l'acqua , uno interrato e uno sopraelevato, una rete di distribuzione elettrica, una fossa settica e una per lo smaltimento dei rifiuti.
Accanto alle abitazioni e alle aree di studio e svago (campo di rugby, pista di atletica, aree gioco) si trovano un ampio terreno coltivato e le stalle per gli animali. L’allevamento e il terreno agricolo sostengono, in parte, il Centro e la loro gestione rientra nella formazione delle ragazze e della comunità.
Il Centro dispone, inoltre, di alcuni mezzi di trasporto e per lavorare la terra: un pickup Toyota, un minibus Nissan per 11 persone, un altro vecchio minibus 11 persone, un magnifico trattore con carrello, aratro e frangizolle per i quali sono state costruite imponenti tettoie.

